方案展示
設計說明
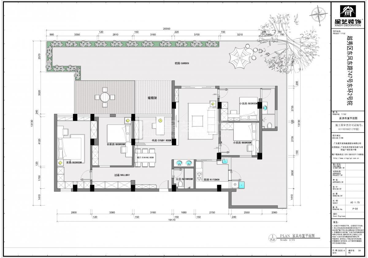
越秀區(qū)的老房子,需要把原先黃泥批蕩重新打掉。因為家里人口較多,所以整體房型需要重新設計。將原先四房格局改為五房,而且增加客餐廳的采光,讓客餐廳獨立開來,還增加了整體的儲物量,改善原先業(yè)主的居住需求。
[展開]
關注我們
分享到
微信

立即預約
在線咨詢
在線客服
公安部備案號 44010602004978號